빌리브 리버런트 울산 아파트 분양 청약
2022년 12월 29일ㆍ분양·청약정보

빌리브 리버런트
고금리가 이어지면서 부동산 시장이 빙하기로 접어들고 있지만 대도시는 여전히 강세입니다. 이들 지역은 직장과 가깝고 생활 인프라가 풍부해 주거 선호도가 높아 다소 안정적이라는 평가를 받고 있습니다. 제가 오늘 소개할 빌리브 리버런트가 대표적인 예입니다.
- 울산시 / 아파트 / 민간분양
- 울산시 남구 신정동 22-4번지 일원


사업개요
우선 사업개요지는 울산 남구 신정동 22-4번지 일대로 연면적 4만 925.3019㎡, 건물면적 5,056.4794㎡로 지하 3층~지상 29층, 총 4개 동 311 가구 규모다. 남구에서 6억 원의 프리미엄을 누릴 수 있다고 광고합니다. 신세계 빌리브 리버런트 브랜드와 합리적인 판매 가격이 특히 강조됩니다. 소비자들이 합리적인 가격에 그것을 받아들일 수 있을까요?
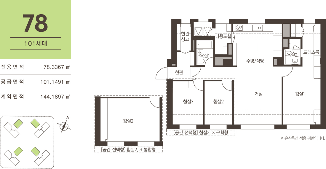
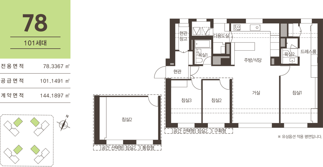
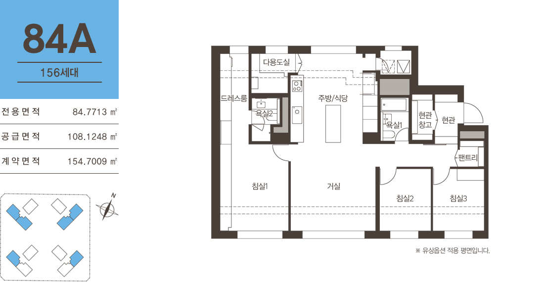
전 세대를 남향으로 배치해 채광과 통풍을 높였고, 소비자 선호도가 높은 4베이 판상 구조를 적용했습니다. 또한 84㎡ 규모의 주방에는 도자기 벽과 상판, 아이리쉬 테이블, 팬트리 등이 설치돼 수납공간을 늘려 고급스러운 분위기를 느낄 수 있습니다. 또한 거실과 주방은 넓은 개방감과 넓은 예술 벽을 위해 잘 형성된 천장을 갖추고 있습니다. 단지 내 피트니스, 북카페 라운지, 골프연습장 등 커뮤니티 시설도 들어설 예정입니다.



분양가
남구는 태화강을 중심으로 아파트가 밀집해 있어 울산에서도 주거성이 높은 지역입니다. 남구의 3.3㎡당 평균 분양가는 1천286만 원으로 평균 1천75만 원보다 200만 원 높습니다. 여기에 9월 조정대상지역 해제로 청약과 세금 등 규제가 완화되면서 진입장벽이 낮아 수요자들의 관심이 높아지고 있습니다.
또한 단지 인근에는 대형 쇼핑몰 세이브존이 위치해 있습니다. 또한 울산병원과 문화예술회관 등 의료문화시설이 잘 갖춰져 있고 뉴코아아웃렛, 롯데백화점, 현대백화점 등이 밀집해 있으며 삼산동 상권이 가까워 다양한 생활 인프라를 쉽게 이용할 수 있습니다.
많은 학교들이 빌리브 리버렌트의 도보 지역에 집중되어 있습니다. 눈앞에 월봉초등학교를 비롯한 강남고가 가깝고, 반경 1km 이내에 중앙초등학교와 월평중학교 등 학원가가 인접해 있어 학습 분위기가 좋아 보입니다. 울산 남구 신정동 29층 4개 동 311 가구 빌리브 리버런트(주상복합) 입주자 모집합니다. 태화강과 강변공원이 인접한 단지들이 있어 우수한 자연환경을 누릴 수 있습니다. 중학교는 걸어가기에는 좀 먼 것 같지만 초등학교 - 고등학교는 매우 가깝습니다.

생활 인프라
여러분은 세이브존, 울산병원, 문화예술회관 등 남구의 생활 인프라를 즐길 수 있습니다. 신세계건설 브랜드 빌리브 리버런트의 주상복합에 관심이 쏠리는 조건입니다. 84형 최대 분양가는 6,740억 원으로 발코니 확장 비용과 이자 비용, 옵션 비용 등을 고려하면 7억 원 이상이 필요합니다. 시장 분위기를 고려하면 가격이 너무 부담스러워요. 주변 단지에는 실제 거래가 없습니다. 시장 가격을 보수적으로 확인해야 할 것 같아요.
계약금 10%와 중도금 60%는 후불 조건입니다. 기존 무이자 조건을 계획했지만 이자 지급 조건으로 공고를 정정했습니다. 당첨되면 분양가의 10% 현금만 있으면 입주 전까지는 문제가 없습니다. 입주 시 LTV 70%가 적용되며, 임대료를 사용할 수 있습니다. 울산, 부산, 경남에 거주하는 성년자 청약통장의 6개월 지역예금 기준을 충족하면 1순위 청약을 신청할 수 있습니다. 울산광역시 주민들에게 먼저 공급합니다.

비규제 단지
비규제지역 분양가 상한제에는 적용되지 않는 비규제 단지입니다. 소유권 등록일까지 전매나 거주 의무에 대한 제한이 없습니다. 좋은 평면도와 상업성이 있는데 문제는 가격입니다. 합리적인 가격이라고 하지만 소비자들이 동의하기는 쉽지 않아 보입니다.

입지
또 번영로와 인접해 도심 이동이 편리하고 울산 교통의 요지인 태화로터리, 강남로, 신정로 접근이 용이합니다. 고속도로에서 차로 10분 거리에 고속터미널, 시외버스터미널 등 광역교통망이 갖춰져 있어 대중교통이 잘 갖춰져 있습니다. 또한 태화강공원은 바로 즐길 수 있으며, 전망은 물론 쾌적한 주거환경을 갖추고 있습니다. 태화강을 따라, 자전거 도로, 산책로, 유채꽃 단지, 스포츠 공원, 그리고 시민 공원이 근처에 있습니다.


'분양·청약정보' 카테고리의 다른 글
| 평택 석정공원 화성파크드림 아파트 분양 정보 (0) | 2023.02.09 |
|---|---|
| 동탄 더챔버 라티파니 지식산업센터 분양 (0) | 2023.02.08 |
| 독골사거리역 더세븐시티아파트 분양 (0) | 2023.02.03 |
| 부천 더원 루미에르 아파트 오피스텔 분양 청약 (0) | 2022.12.29 |
| 인천석정한신더휴 아파트 분양 청약 (0) | 2022.12.28 |
| e편한세상 평택 라씨엘로 아파트 분양 청약 (0) | 2022.12.28 |
| 호반써밋그랜드에비뉴 광명 아파트 분양 청약 (0) | 2022.12.28 |
| 남천자이 부산 아파트 분양 청약 (0) | 2022.12.28 |
