젠트라움 논현 인천 오피스텔 분양
2022년 12월 28일ㆍ분양·청약정보

젠트라움 논현
- 인천시 / 오피스텔 / 민간분양
- 인천시 남동구 논현동 677-5번지 일대

아파트형 오피스텔
아파트 규제가 늘어나는 요즘, 상대적으로 부담이 적고 주거용으로 좋은 아파트형 오피스텔이 인기입니다. 청약통장이 필요 없을 뿐만 아니라 규제가 적고 세제 혜택이 있다는 장점도 있습니다. 그래서 오늘은 적절한 젠트라움 논현 판매 정보에 대해 설명하겠습니다.
제가 오늘 소개할 젠트라움 논현은 인천 남동구 수도권에 위치하고 있으며, 정확한 주소는 논현동 677-5번지입니다. 총 116개의 방으로 지하 5층에서 지상 24층으로 올라갑니다. 대지면적 1,497.90㎡, 건폐율 69.96%, 연면적 18,042.25㎡, 연면적률 799.52%입니다.

주차 공간
130여 대의 주차가 가능합니다. 이는 가구 수 이상을 자랑합니다. 게다가 넓은 주차장 디자인으로 주민들이 편리하게 이용할 수 있을 것입니다.
대부분의 오피스텔이 작은 균형으로 설계돼 있지만, 이 부지는 조금 다릅니다. 객실 130개 중 114호는 61㎡ 타입으로 침대 2개와 판 모양의 3베이가 있어 더욱 편안한 공간을 제공합니다. 다른 아파트와 다를 바 없는 드레스룸과 팬트리가 있다는 것을 말씀드리고 싶습니다.
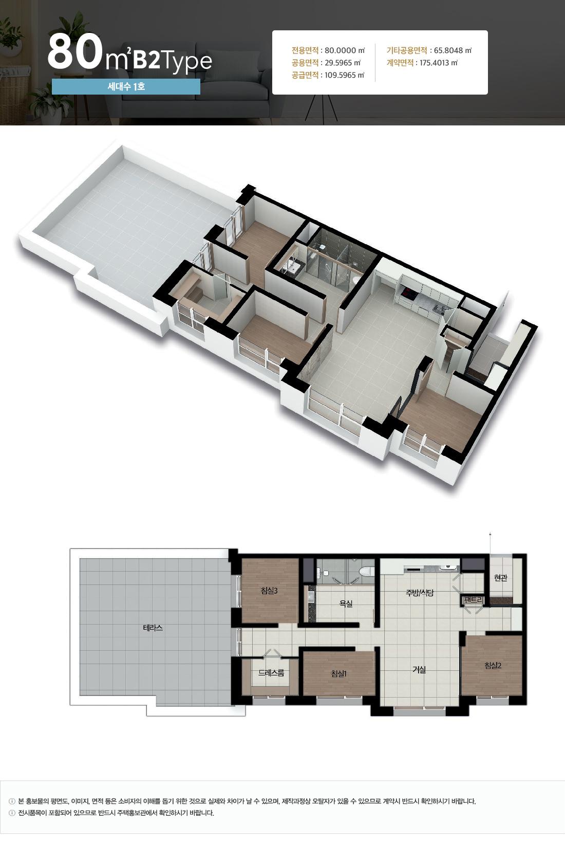
6㎡ 타입은 2가지 타입으로 나뉘며, A타입은 바닥이 있어 따뜻하고 편안한 느낌을 주며, B타입은 거실과 주방에 타일이 있어 스타일리쉬하고 깔끔한 스타일입니다. 그리고 젠트라움 논현은 78㎡, 80㎡ 타입도 제공합니다.
이 두 개의 평형대는 모두 판 모양의 4베이이며, 80㎡ 타입의 테라스가 매력적인 객실입니다. 또한, 식료품 저장실이 크기 때문에 많은 장점이 있습니다. 이 타입은 방이 거의 없어서 고민 중이시라면 빠른 결정이 필요합니다.
오피스텔의 좋은 점 중 하나는 단지 내 상가가 잘 자리 잡고 있다는 점입니다. 1층과 2층에도 편리하게 이용할 수 있는 쇼핑몰이 위치해 있어 주민들이 편리하게 생활할 수 있습니다.

커뮤니티 시설
아파트와 같은 대규모 단지는 커뮤니티 시설이 잘 갖춰져 있습니다. 이 비즈니스 사이트에는 다이닝 라운지, 비즈니스 라운지, 피트니스 센터도 있습니다. 그리고 최근 이에 대한 선호도가 높아지면서 다양한 시설이 들어설 예정입니다.
바쁜 대도시 지역에서 지하철은 매우 중요한 교통 지역입니다. 그렇기 때문에 역세권은 항상 인기 요인이고 젠트라움 논현은 단지에서 약 170m 떨어진 수인선 소래포지구가 들어설 예정입니다. 충분한 보행권을 확보한 경산선은 오는 2021년 4월 착공에 들어가므로 더블역세권도 기대해볼 만하다.

교통망
게다가, 이 장소는 모든 방향으로 통하는 훌륭한 교통망을 가지고 있습니다. 제 3경인고속도로와 서울외곽순환도로와도 인접해 있어 서울 등 수도권 이동이 편리합니다. 인천에서 출발하는 GTX와 KTX는 인천에서 서울, 청량리까지 빠르게 이동하는 교통수단인데 이 요소가 큰 호재라고 할 수 있습니다. 또한 엄청난 미래 가치를 창출하는 부분이기도 합니다.
그러면 어떻게 생활권이 만들어질까요? 실제로 현재 사업장은 지역 내 1순위 거주지로 불리는 다양한 생활 인프라를 갖추게 됩니다. 신세계아울렛, 홈플러스 등 대형 소핑몰이 있어 근처에 여가를 즐길 수 있는 공간도 마련돼 있습니다.
생활 인프라 외에도 소래초등학교, 논현초등학교 등 우수 학군이 위치해 있어 자녀를 둔 학부모들의 관심도 큽니다. 또한 어린이들이 즐길 수 있는 공원들이 근처에 많이 있을 것입니다.



젠트라움 논현 근처에는 소래습지생태공원뿐만 아니라 해안도로 산책로가 있어 쾌적하고 푸른 환경이 조성되어 있습니다. 요즘 자연환경이 발달한 곳이 인기가 많다는 건 다들 아시죠?
아이들과 어른들이 편안하게 쉴 수 있는 공간이며, 일상생활에서 이러한 자연환경을 통해 지친 몸을 풀어주는 좋은 방법이기도 합니다.




현재 이 젠트라움 논현 주변은 많은 호재들로 채워질 것으로 예상됩니다. 위에서 언급한 교통여건이 양호한 것 외에도 소래포구 어시장 현대화사업, 오름공원 등 다양한 관광지를 조성할 계획이며, 관광객 유입은 여전히 증가하고 있습니다. 현재 남동구는 경제개발의 중심이 될 미래형 스마트 산업단지 조성 계획을 갖고 있습니다.
젠트라움 논현 타입별





임대사업자 종류 2가지, 각각의 차이점과 장단점 알아보기
임대사업자 종류 2가지, 각각의 차이점과 장단점 알아보기
임대사업자 종류는 크게 주택임대사업자와 일반임대사업자로 나눠집니다. 두 가지 종류의 임대사업자에 대해 자세히 알아보면서 각각의 장단점을 비교해보겠습니다. 이를 통해 세금 절약을 위
homeassets.tistory.com
전문가가 알려주는 적은 돈으로 부동산 투자하는 방법
소액으로도 부동산을 투자할 수 있다는 것을 알고 계셨나요? 이제는 부동산 투자가 어려운 것이 아니라 적극 추천하고 싶습니다. 이번 글에서는 소액으로도 가능한 부동산 투자 방법과 대출을
homeassets.tistory.com
잠실에떼르넬비욘드 오피스텔 청약 분양 정보 (평면도, 분양가)
잠실에떼르넬비욘드 오피스텔 청약 분양 정보 (평면도, 분양가)
잠실에떼르넬비욘드 오피스텔 서울에서 가장 입지가 좋은 잠실에떼르넬비욘드 오피스텔과 최고의 인프라 시설에 대해 알아보겠습니다. 서울 송파구 방이동 34-1입니다.연면적은 3,279.52제곱미터
homeassets.tistory.com
동탄 더챔버 라티파니 지식산업센터 분양
동탄 더챔버 라티파니 지식산업센터 동탄 더챔버 라티파니가 들어서는 동탄테크노밸리는 판교테크노밸리의 약 2.3배에 달하는 155만6000㎡ 면적에 첨단산업과 연구·벤처시설이 결합된 산업클러
homeassets.tistory.com
부천 더원 루미에르 아파트 오피스텔 분양 청약
더원 루미에르 공급위치 : 경기도 부천시 원종동 476 공급규모 : 아파트 지하 2층, 지상 11층, 2개동 총 110세대 분양분: 일반분양 - 35세대(특별공급 18세대 포함)세대 조합원 : 75세대 제외, 일반공급
homeassets.tistory.com
'분양·청약정보' 카테고리의 다른 글
| 인천석정한신더휴 아파트 분양 청약 (0) | 2022.12.28 |
|---|---|
| e편한세상 평택 라씨엘로 아파트 분양 청약 (0) | 2022.12.28 |
| 호반써밋그랜드에비뉴 광명 아파트 분양 청약 (0) | 2022.12.28 |
| 남천자이 부산 아파트 분양 청약 (0) | 2022.12.28 |
| 역삼동 비엘106 호텔같은 오피스텔 (0) | 2022.05.20 |
| 의정부 더샵 리듬시티 청약 분양가 모델하우스 분양안내 (0) | 2022.05.12 |
| 조례 한양수자인 디에디션 분양정보 분양가 평면도 모델하우스 (0) | 2022.05.12 |
| 초읍 월드메르디앙 에듀포레 분양 입주자모집공고 분양 (0) | 2022.05.12 |